images
大宅设计,不专注=问题交付

专注大宅设计的公司

工艺

公寓、刚需、平层、别墅都做的公司

自有大宅别墅施工工艺体系

材料

统一施工标准

专属别墅施工团队

团队

材料整合供应商

别墅大宅施工管理体系与
经验丰富的项目经理

管理

啥活都接的项目经理

东易园装饰施工美学
精心雕琢,用心铸就传世作品
images
15步,构画新家美好蓝图
images01

原始量房图

通过量房准确了解房屋内各房间的朝向、长、宽、高和门、窗等的位置,以及墙体是否为承重墙体

images02

原始梁位图

梁的具体位置、高度,以及保证后期全房天棚设计方案精准落地

images03

原始机电(排水)位置示意图

明确强弱电箱、排水管道等的具体位置,设计中规避风险,结合设计方案,得出后期电路图、排水点位图

images04

拆除墙体位置图

对照设计方案将多余的非承重墙,进行定位、标尺,方便工人现场的准确施工

images05

新建墙体位置图

墙体结构中新加建墙体的材料、厚度、尺寸等的明确注释

images06

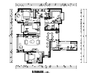
平面家居方案布置图

设计师观察房屋的位置和朝向、周围的环境状况、房屋原始结构、空间布局等,进行设计规划的平面方案展示

images07

平面家居产品尺寸示意图

平面方案内各个家具尺寸的示意图纸

images08

软装布置示意图

详细描述软装产品的品牌、颜色、尺寸

images09

顶面(天花)布置图

吊顶的工艺、高度、饰面材料等进行分析介绍

images10

地面装饰布置图

展示使用木质地板、瓷砖、地漏等的尺寸,以及起铺点位置、铺贴造型、坡度

images11

墙面(身)装饰布置图

空间墙面饰面的标注,以及基层处理

images12

强/弱电插座点位图

明确预留的强弱电、有线电视、网络点位位置

images13

照明及开关点位布置图

各个空间中照明光源,控制开关面板数量和位置

images14

冷热水点位布置图

预留水的点位位置高度,是否为冷热双水,方便现场施工时提前预埋

images15

立面索引图

立面图的指向性图纸,上方字母代表方向,下方字母数字代表图纸页数

images01

原始量房图

通过量房准确了解房屋内各房间的朝向、长、宽、高和门、窗等的位置,以及墙体是否为承重墙体

images02

原始梁位图

梁的具体位置、高度,以及保证后期全房天棚设计方案精准落地

images03

原始机电(排水)位置示意图

明确强弱电箱、排水管道等的具体位置,设计中规避风险,结合设计方案,得出后期电路图、排水点位图

images04

拆除墙体位置图

对照设计方案将多余的非承重墙,进行定位、标尺,方便工人现场的准确施工

images05

新建墙体位置图

墙体结构中新加建墙体的材料、厚度、尺寸等的明确注释

images06

平面家居方案布置图

设计师观察房屋的位置和朝向、周围的环境状况、房屋原始结构、空间布局等,进行设计规划的平面方案展示

images07

平面家居产品尺寸示意图

平面方案内各个家具尺寸的示意图纸

0元预约户型规划 新家布局了然于胸

送设计案例

不惧多重对比

送上门量房

不惧结构难题

送平面规划

不惧客户质疑

送风格解析

不惧潮流侵袭

新家布局了然于胸

images
icos立即免费预约1v1定制设计
在线客服
免费
免费报价
扫描二维码
回到顶部